Проект на къща в с. Мало Бучино
Информация за проекта:
- Проект ID: 973
- Место нахождения: с. Мало Бучино, р-н Овча купел, гр. София
- Фаза проекта: технический проект
- Этап строительства: строеж
- Тип крыши: Многоскатен
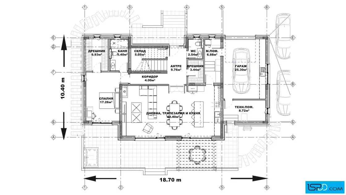
- Технически показатели
- Площадь зданий: 178 кв.м.
- Общая площадь: 316 кв.м.
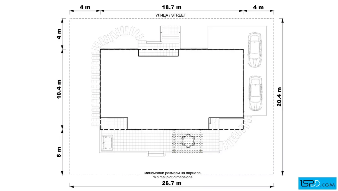
- Габарити на сградата
- Широчина на сградата: 18.70 м.
- Дължина на сградата: 10.40 м.
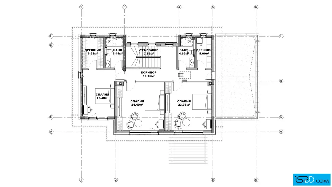
- Функционалност
- Сутерен: Не
- Этажи: 2
- Комнаты: 5
- Спальни: 4
- Гараж: 1
- Бани/WC: 4
Информация за проекта:
Проект на къща в с. Мало Бучино проектирана от архитектурно студио Ай Ес Пи Дигитален Дизайн
























Коментари