Архитектурно студио
Работаем в любом масштабе и
в любой сфере
архитекти София
Создаем пространства в синхроне
с иx
окружением
Архитектурно студио
Мы объединяем естественный рельеф с
человеческой
находчивости
Архитектурно студио
Мы реализуем динамичные, инновационные и
устойчивые
проекты

Проект на къща в с. Стар Кръвеник

Информация за проекта:

  • Проект ID: 975
  • Место нахождения: с. Стар Кръвеник, общ. Севлиево
  • Фаза проекта: технический проект
  • Этап строительства: строеж
  • Тип крыши: Многоскатен
  • Технически показатели
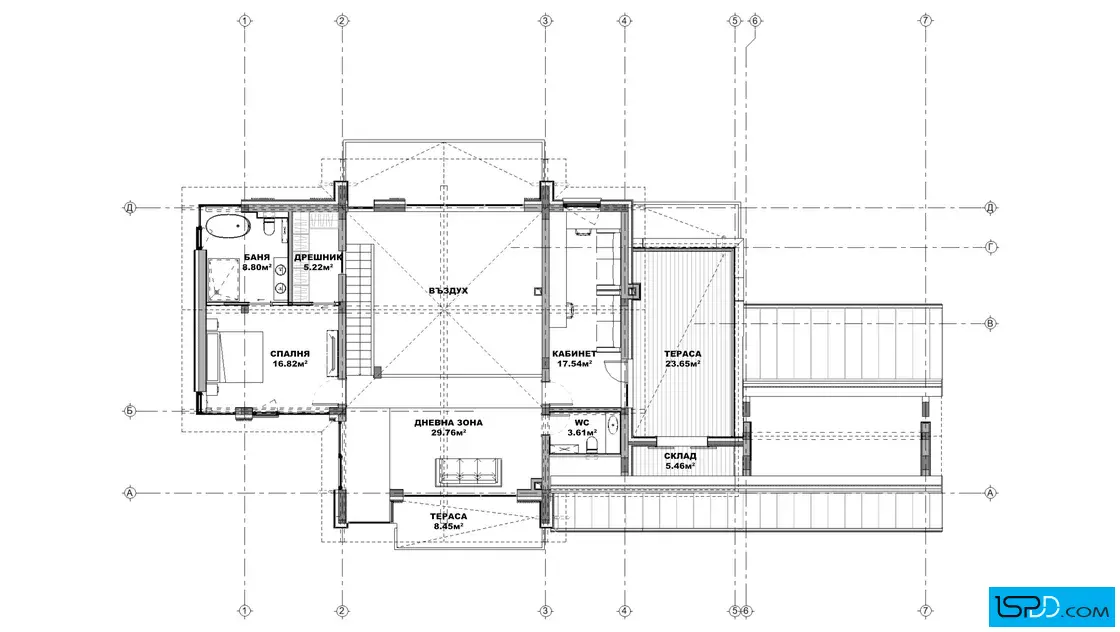
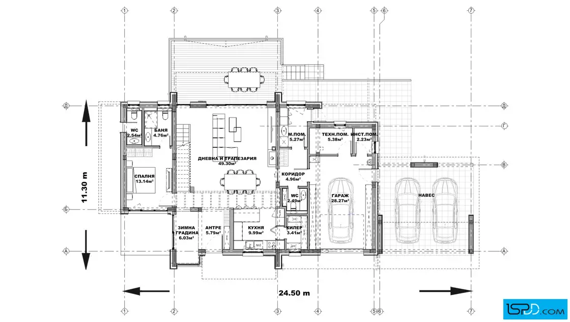
  • Площадь зданий: 175 кв.м.
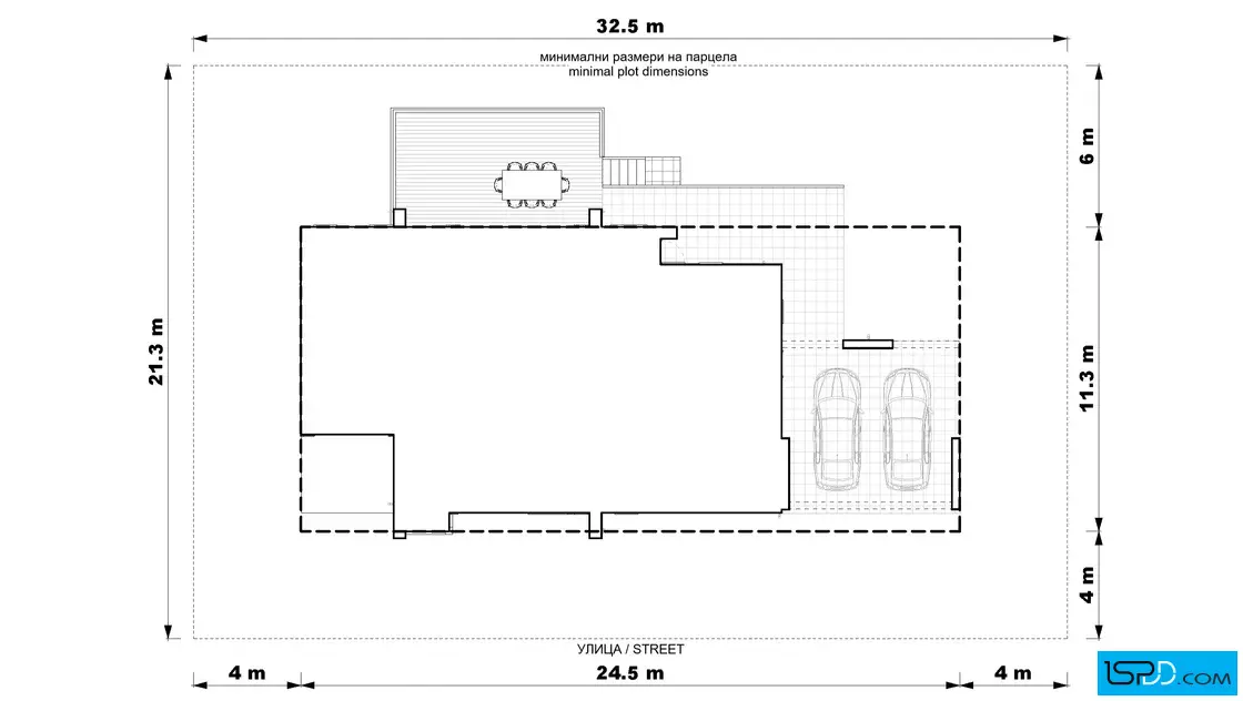
  • Общая площадь: 325 кв.м.
  • Габарити на сградата
  • Широчина на сградата: 24.50 м.
  • Дължина на сградата: 11.30 м.
  • Функционалност
  • Сутерен: Не
  • Этажи: 2
  • Комнаты: 5
  • Спальни: 2
  • Балконы: 2
  • Гараж: 1
  • Бани/WC: 5

Информация за проекта:

Проект на къща в с. Стар Кръвеник проектирана от архитектурно студио Ай Ес Пи Дигитален Дизайн

975 N/A

Планове:

План на първи етаж

План на първи етаж

План на втори етаж

План на втори етаж

Ситуиране на къщата в парцела:

Жилищно строителство

Жилищно строителство

Вилно строителство

Вилно строителство

Коментари

Няма добавени коментари - пишете ни от формата по-долу