Готов проект на къща C22
Информация за проекта:
- Проект ID: 133
- Местоположение: Готов проект на къща C22
- Фаза на проектиране: технически проект
- Цена: 6400 лв. (без ДДС)
- Дата на завършване (www.proektinakashti.com): 03.2013
- Етап на строителство: Проект
- Тип покрив: Едноскатен
- Технически показатели
- Застроена площ: 60 кв.м.
- Разгъната застроена площ: 120 кв.м.
- Функционалност
- Сутерен: Не
- Надземни етажи: 2
- Стаи: 6
- Спални: 4
- Веранди: 1
- Бани/WC: 2
Информация за проекта:
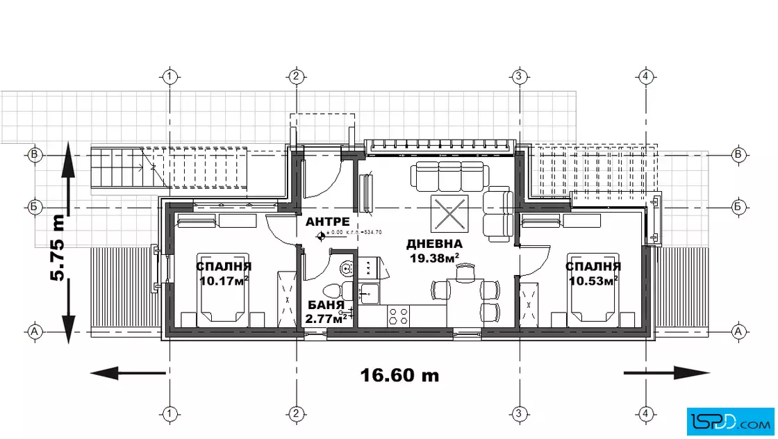
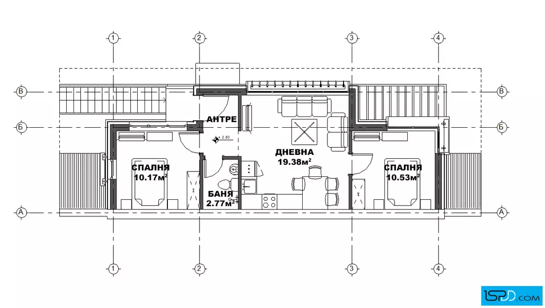
Това е проект на компактна двуетажна вилна къща. Визията е ултрамодерна като за целта по фасадата са използвани облицовка от композитни панели в цвят „графит” и HPL плоскости в дървесен цвят. Покривът преминава като черупка през цялата сграда като по този начин стяга и обобщава формата. Проектирана е експресивна външна еднораменна стълба за второто ниво. Предната фасада е изцяло обърната към гледката и затова там е проектирано площно остъкляване с витрини от пода до тавана. Макар и помещенията да са със скромни размери, доминиращото остъкляване ги отваря към екстериора и компенсира за ограничената им квадратура. Дървени жалузи предпазват къщата от прегряване като тяхното разположение е съобразено с посоките и на запад те са вертикални, а на юг са хоризонтални. Къщата е двуетажна като двете нива са идентични по площ и разположение. Всяко ниво съдържа входно антре, дневна с кухненски бокс и кът за хранене, две спални и баня.
Конструкцията е монолитна стоманобетонна като покривът е от метал. Ограждащите стени са тухлени с външна топлоизолация. Фасадното оформление включва композитни и HPL панели. Дограмата е PVC със стъклопакет от нискоемисионно стъкло. Покривът е едноскатен покрит с нископрофилна ламарина, прахово боядисана и с полимерно покритие за външен монтаж.
Площ на първо ниво: 60 кв.м.
Площ на второ ниво: 60 кв.м.
ЗАКУПУВАНЕ НА
ПРОЕКТ НА КЪЩА
Имате въпроси по проекта?
Ние сме тук да Ви помогнем!
Свържете се с нас сега!






















Коментари