Готов проект на къща C27
Информация за проекта:
- Проект ID: 145
- Местоположение: Готов проект на къща C27
- Фаза на проектиране: технически проект
- Цена: 6400 лв. (без ДДС)
- Дата на завършване (www.proektinakashti.com): 08.2013
- Етап на строителство: Проект
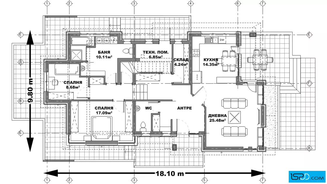
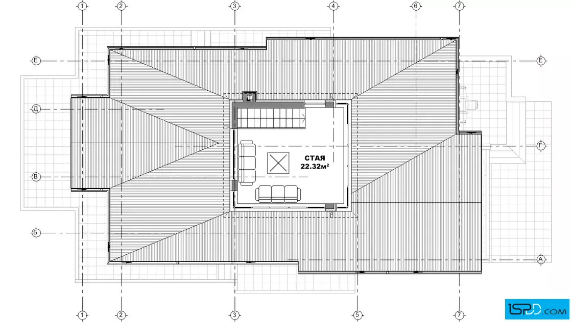
- Тип покрив: Четирискатен
- Технически показатели
- Застроена площ: 145 кв.м.
- Разгъната застроена площ: 175 кв.м.
- Габарити на сградата
- Широчина на сградата: 18.10 м.
- Дължина на сградата: 9.80 м.
- Функционалност
- Сутерен: Не
- Надземни етажи: 2
- Стаи: 4
- Спални: 2
- Веранди: 1
- Бани/WC: 2
Информация за проекта:
Еднофамилна къща
ЗАКУПУВАНЕ НА
ПРОЕКТ НА КЪЩА
Имате въпроси по проекта?
Ние сме тук да Ви помогнем!
Свържете се с нас сега!
(+359 887) 237 839
(+359 887) 213 099






















Коментари