Готов проект на къща D21
Информация за проекта:
- Проект ID: 167
- Местоположение: Готов проект на къща D21
- Фаза на проектиране: технически проект
- Цена: 8900 лв. (без ДДС)
- Дата на завършване (www.proektinakashti.com): 08.2014
- Етап на строителство: В процес на строеж
- Тип покрив: Четирискатен
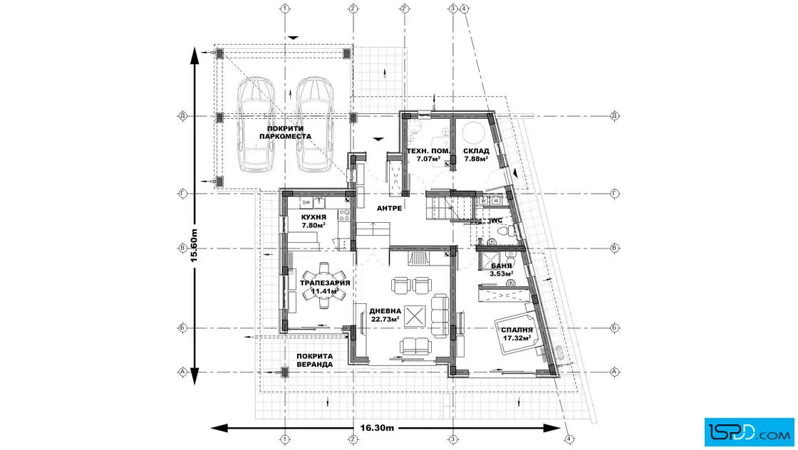
- Технически показатели
- Застроена площ: 163 кв.м.
- Разгъната застроена площ: 243 кв.м.
- Габарити на сградата
- Широчина на сградата: 16.60 м.
- Дължина на сградата: 15.60 м.
- Функционалност
- Сутерен: Не
- Надземни етажи: 2
- Стаи: 4
- Спални: 3
- Балкони/Тераси: 1
- Веранди: 1
- Гараж (брой коли): 2
- Бани/WC: 3
Информация за проекта:
Еднофамилна къща в с. Храбърско
ЗАКУПУВАНЕ НА
ПРОЕКТ НА КЪЩА
Имате въпроси по проекта?
Ние сме тук да Ви помогнем!
Свържете се с нас сега!
(+359 887) 237 839
(+359 887) 213 099






















Коментари