Готов проект на къща E02
Информация за проекта:
- Проект ID: 46
- Местоположение: Готов проект на къща E02
- Фаза на проектиране: технически проект
- Цена: 11740 лв. (без ДДС)
- Дата на завършване (www.proektinakashti.com): 07.2008
- Етап на строителство: Проект
- Тип покрив: Четирискатен
- Технически показатели
- Застроена площ: 154 кв.м.
- Разгъната застроена площ: 324 кв.м.
- Габарити на сградата
- Широчина на сградата: 11.20 м.
- Дължина на сградата: 19.10 м.
- Функционалност
- Сутерен: Не
- Надземни етажи: 2
- Стаи: 4
- Спални: 3
- Балкони/Тераси: 4
- Веранди: 1
- Гараж (брой коли): 1
- Бани/WC: 4
Информация за проекта:
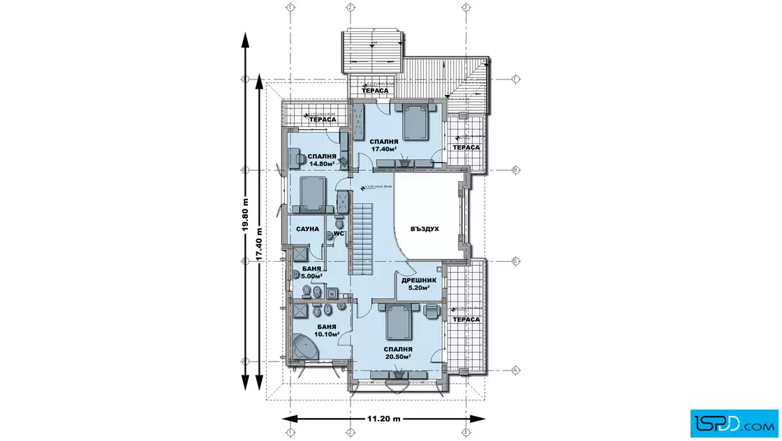
Тази еднофамилна къща е разположена в полите на Витоша, сред вековни дървета и зеленина. Отчитайки този факт, проектът на къщата отделя основно внимание на камъка и дървото, за да приобщи сградата към околната среда. Отделни стени на къщата са изцяло облечени с каменна облицовка, но до тях бялата мазилка създава усещането за елегантност, лекота и детайл. Големите стрехи, които покриват терасите са укрепени от дървени подкоси. Дървените капаци на прозорците, както и масивните дървени парапети сливат сградата с природната среда. Главния вход на къщата е подчертан от две колони и арковидни отвори. Сградата е развита на два етажа като на първо ниво са проектирани просторно входно фоайе, голяма дневна с кът за камина и зимна градина, трапезария, кухня, гараж за една кола, баня и два склада. Дървени перголи с увивна растителност покриват верандата пред дневната и подхода към гаража. На второ ниво са проектирани три просторни спални, две бани, сауна, дрешник и тоалетна. Една част от нивото е развита като емпоре с директна визуална връзка към трапезарията. Това създава усещането за простор в помещението.
Конструкцията е монолитна стоманобетонна. Ограждащите стени са тухлени с външна топлоизолация. Фасадното оформление включва каменна и дървена облицовка и бяла мазилка. Дограмата е дървена със стъклопакет от нискоемисионно стъкло. Покривът е четирискатен покрит с керемиди.
Площ на първо ниво: 154 кв.м.
Площ на второ ниво: 149 кв.м.
ЗАКУПУВАНЕ НА
ПРОЕКТ НА КЪЩА
Имате въпроси по проекта?
Ние сме тук да Ви помогнем!
Свържете се с нас сега!






















Коментари