Готов проект на къща E14
Информация за проекта:
- Проект ID: 65
- Местоположение: Готов проект на къща E14
- Фаза на проектиране: технически проект
- Цена: 17650 лв. (без ДДС)
- Дата на завършване (www.proektinakashti.com): 02.2007
- Етап на строителство: Проект
- Тип покрив: Четирискатен
- Технически показатели
- Застроена площ: 158 кв.м.
- Разгъната застроена площ: 493 кв.м.
- Функционалност
- Сутерен: Да
- Надземни етажи: 2
- Стаи: 6
- Спални: 4
- Балкони/Тераси: 2
- Веранди: 1
- Гараж (брой коли): 2
- Бани/WC: 4
Информация за проекта:
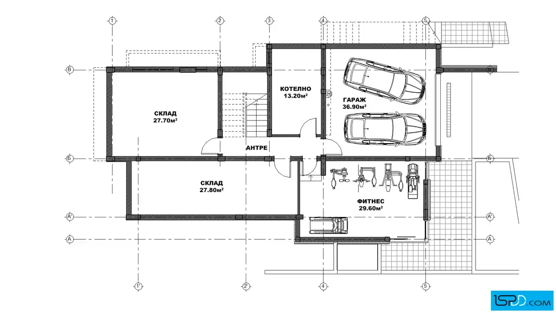
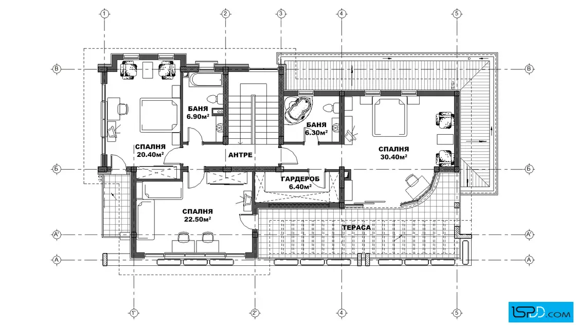
Тази луксозна еднофамилна къща е проектирана в модерен стил като особено внимание е отделено на пластичното взаимодействие между обемите. Фасадната обработка включва два цвята мазилка и каменна облицовка от варовикови плочи, която придава елегантност и изящност на формите. В проекта на къщата е предвидено площно остъкляване по южната фасада, отваряйки помещенията към двора и към гледката. Сградата е решена на три нива, две надземни и едно полу-подземно. В сутерена са проектирани помещение за фитнес, гараж за две коли, котелно и два склада. Благодарение на умелото терасиране на терена и на големите витрини, фитнесът е светъл и приветлив. На приземния етаж са проектирани входно фоайе, просторна дневна с кът за камина, трапезария, кухня със склад към нея, спалня с баня, гардеробно и тоалетна. Развита е голяма веранда пред дневната и трапезарията. На трето ниво са проектирани родителска спалня с баня и гардеробно, детска спалня, спалня за гости и втора баня. Предвидена е просторна тераса пред родителската спалня. Тя е покрита от дървена пергола.
Конструкцията е монолитна стоманобетонна. Ограждащите стени са тухлени с външна топлоизолация. Дограмата е от PVC със стъклопакет от нискоемисионно стъкло. Покривът е четирискатен покрит с керемиди.
Площ на подземно ниво: 175 кв.м.
Площ на първо ниво: 158 кв.м.
Площ на второ ниво: 160 кв.м.
ЗАКУПУВАНЕ НА
ПРОЕКТ НА КЪЩА
Имате въпроси по проекта?
Ние сме тук да Ви помогнем!
Свържете се с нас сега!























Коментари