Готов проект на къща E17
Информация за проекта:
- Проект ID: 21
- Местоположение: Готов проект на къща E17
- Фаза на проектиране: технически проект
- Цена: 10133 лв. (без ДДС)
- Дата на завършване (www.proektinakashti.com): 06.2008
- Етап на строителство: Реализация
- Тип покрив: Плосък
- Технически показатели
- Застроена площ: 130 кв.м.
- Разгъната застроена площ: 555 кв.м.
- Габарити на сградата
- Широчина на сградата: 14.90 м.
- Дължина на сградата: 9.70 м.
- Функционалност
- Сутерен: Да
- Надземни етажи: 2
- Стаи: 7
- Спални: 5
- Балкони/Тераси: 3
- Веранди: 1
- Бани/WC: 7
Информация за проекта:
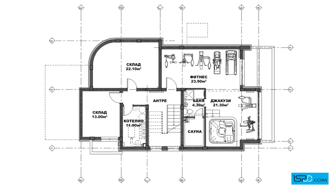
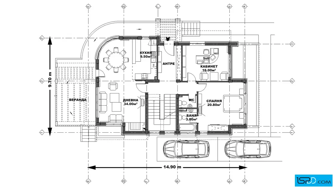
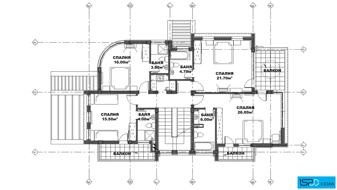
Този проект на луксозна еднофамилна къща е с модерна визия, която проличава в умелото преплитане на форми и обеми. Фасадното оформление използва съвременни материали като обработени варовикови плочи и композитни панели. Чарът на къщата е в комбинацията от овални форми, хоризонтално членение и мощни изкачащи от плоскостта на фасадата обеми. Сградата е с два надземни етажа и едно полу-подземно ниво. В сутерена са проектирани помещение за фитнес със сауна и баня, котелно и два склада. Благодарение на умелото терасиране на терена и на големите витрини, фитнесът е светъл и приветлив. В него е предвиден кът за тангенторна вана. На приземния етаж са проектирани входно фоайе, просторна дневна с кът за камина, трапезария, кухня, спалня с баня, кабинет и тоалетна. Входът на къщата и верандата към двора са покрити с дървени перголи. На втория етаж са проектирани четири големи спални и четири бани. На покривната тераса е развита градина и кът за отдих. Площното остъкляване на помещенията заедно със стъкленият ефирен парапет допринасят за модерния вид на сградата. В допълнение дневната светлина се оползотворява максимално.
Конструкцията е монолитна стоманобетонна. Ограждащите стени са тухлени с външна топлоизолация. Фасадното оформление включва каменна и дървена облицовка и цветна мазилка. Дограмата е от PVC със стъклопакет от нискоемисионно стъкло. Покривът е плосък. Този проект на градска къща създава всички удобства на своите обитатели.
Площ на подземно ниво: 134 кв.м.
Площ на първо ниво: 130 кв.м.
Площ на второ ниво: 164 кв.м.
Площ на покривно ниво: 127 кв.м.
ЗАКУПУВАНЕ НА
ПРОЕКТ НА КЪЩА
Имате въпроси по проекта?
Ние сме тук да Ви помогнем!
Свържете се с нас сега!























Коментари